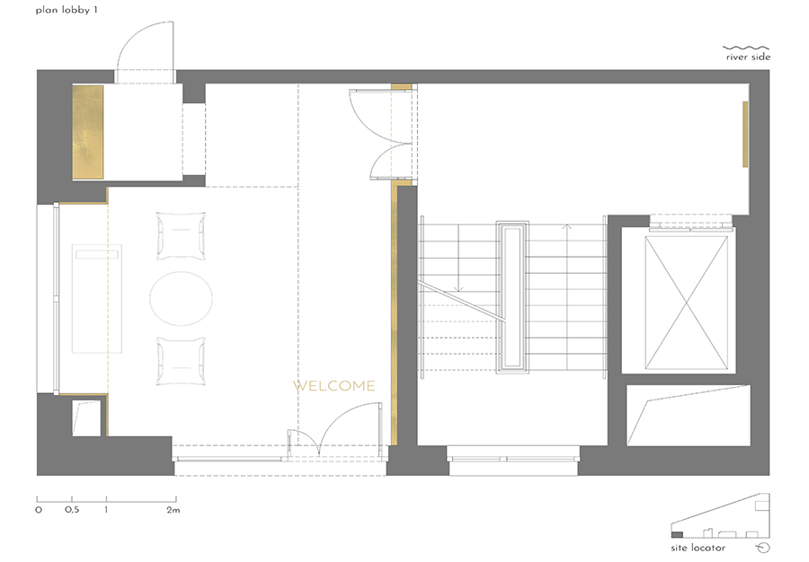
Situated along the Vltava River, Prague Marina Nova features 6 commercial units and 151 apartments complemented by 5 distinct reception areas. The interior design of these residential lobbies adopts a storyteller’s approach, weaving a narrative within the architectural spaces that pays tribute to the borough’s unpretentious architecture and its people.
While each lobby boasts a unique layout, they collectively share a cohesive architectural language, coming together to tell a captivating and unified story.














Credits
Interior
Go Architects; Ynon Goren
Client
Daramis
Year of completion
2024
Location
Prague, Czech Republic
Total area
300 m2
Photos
Jiří Alexander Bednář, BoysPlayNice
Winners’ Moments
Project Partners
Lighting: Exx
Brass wall cladding: Matys
Furniture: Interiors MND
Terrazzo floors & wall cladding: Teraco lité s.r.o.
Decorative plaster: 3deco
General contractor: Porr




