The executive search company Neumann International oversaw a growing number of headquarters worldwide. To establish a consistent corporate image, Armin Stocker was commissioned to design an architectural Corporate Identity that would account for local conditions and fundamental spatial parameters, ensuring seamless adaptation across various rented office locations.
The creative overarching concept accommodates a wide range of possible prerequisites. The offices are housed in diverse settings, from modern high-rise buildings to historical palaces, with sizes ranging from 150 to 900 square meters.
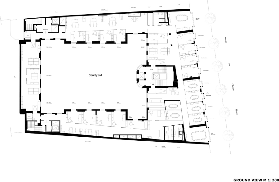
This particular project is the Paris office, located on the renowned Avenue des Champs-Élysées and completed in 2010. The office spans 900 square meters and occupies an entire floor of a classic Haussmann-style building in the 8th district of Paris. Thanks to the building’s façade facing the Champs-Élysées and a spacious inner courtyard, the reception area offers a stunning view of the Eiffel Tower, while the meeting rooms provide inviting vistas of the Champs-Élysées.









Credits
Interior
Atelier Armin Stocker; Dr. Armin Stocker, Gudrun Stocker, Walter Sametinger, Mario Schierl, Alexander Gurmann, Martin Feichtner
Client
Neumann International AG
Year of completion
2010
Location
Munich, Germany
Photos
Angelo Kaunat





