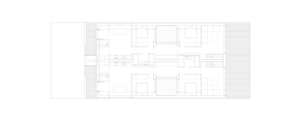
The project’s refined formal language abstracts the essence of the local vernacular. Each house, adorned in pastel pink and pastel yellow both inside and out, reflects the characteristic hues of Hungarian village homes. Designed as single-level residences, the linear form of each house is thoughtfully divided into an entrance courtyard, central courtyard, and rear garden. This configuration ensures that every room is flooded with natural light and opens to tranquil views, offering a refreshing departure from traditional layouts.














Credits
Architecture
WY Design; Pei Yong
Client
Private
Year of completion
2024
Location
Vitnyed, Hungary
Total area
200 m2
Photos
Matti Varga
Project Partners
Videographer: Csaba Kondor




