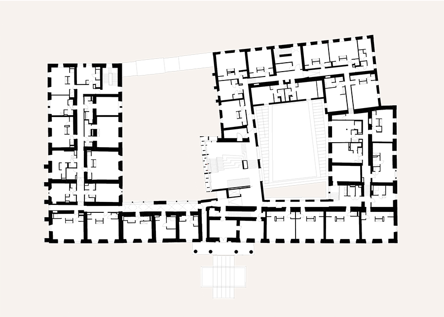
The palace, which was devastated by a fire in 2016, has been meticulously restored as a boarding school, with the addition of a new tower house. Large sections of the historic Ebenzweier Palace were destroyed by the fire and the subsequent firefighting efforts. The historic elements of the castle have now been carefully restored, and a total of 240 boarding spaces have been created.
The newly constructed tower house serves as a focal point for students, integrating the various levels of the existing structure. It forms a dynamic, three-dimensional living landscape featuring galleries, grandstands, balconies, cosy corners, and play areas, fostering a vibrant and engaging environment.
















Credits
Architecture
Kleboth und Dollnig; Andreas Kleboth, Gerhard Dollnig, Stefan Milenković, Albrecht Hölzl, Christian Reicher (NIL), Gideon Grill, Sophia Braun, Anna Ziegler
Client
Landes-Immobilien GmbH
Year of completion
2023
Location
Linz, Austria
Photos
David Schreyer





