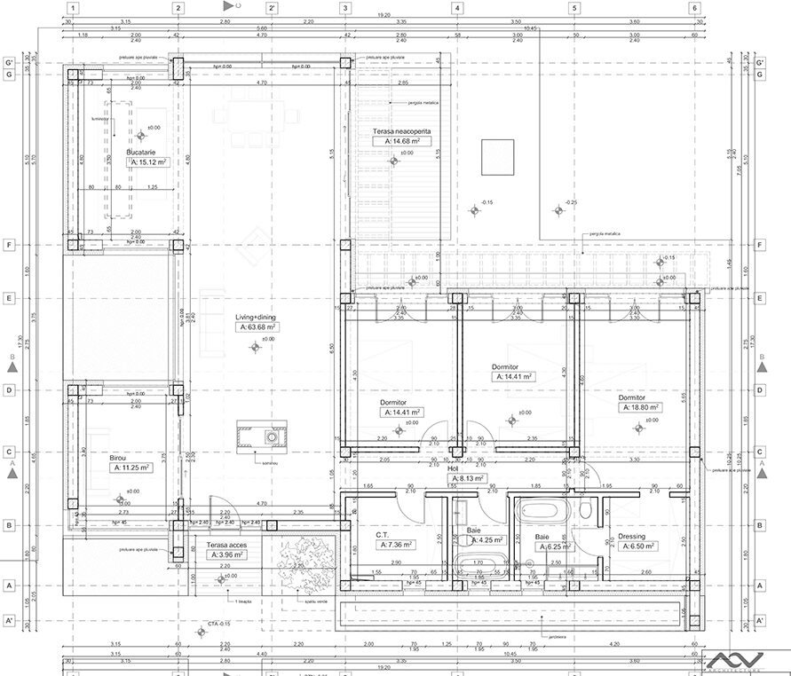
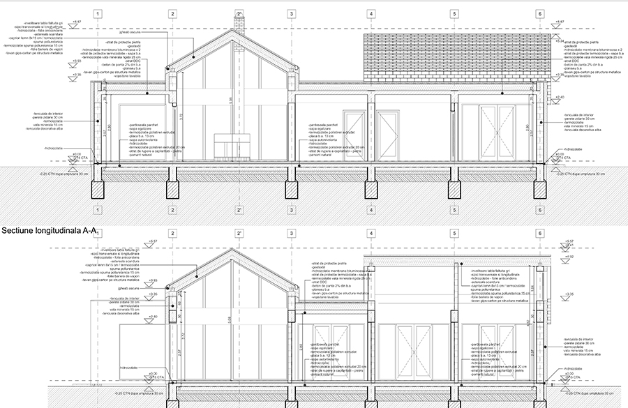
The BLD House project is centered on the principles of introversion and energy efficiency, featuring expansive glazed surfaces that exclusively overlook the private courtyard. The design separates the day and night areas through varying ceiling heights and the placement of an integrated fireplace. The orientation of the house is meticulously planned to ensure each room receives ample natural light, maximizing comfort while allowing the solar panels to operate at 100% efficiency.










Credits
Architecture
AOV architecture
Client
Private
Year of completion
2024
Location
Sanpetru, Romania





