The project has designed as the headquarter of a well-established lace manufacturer company. The structure is the only building on an extended land that is located outside of the city center with a wonderful view of nature.
The major functions of the building are; a showroom where the production samples of the company are presenting to the visitors, personal offices of the company owners, open-planned office and meeting areas, a dining hall for the company employees.
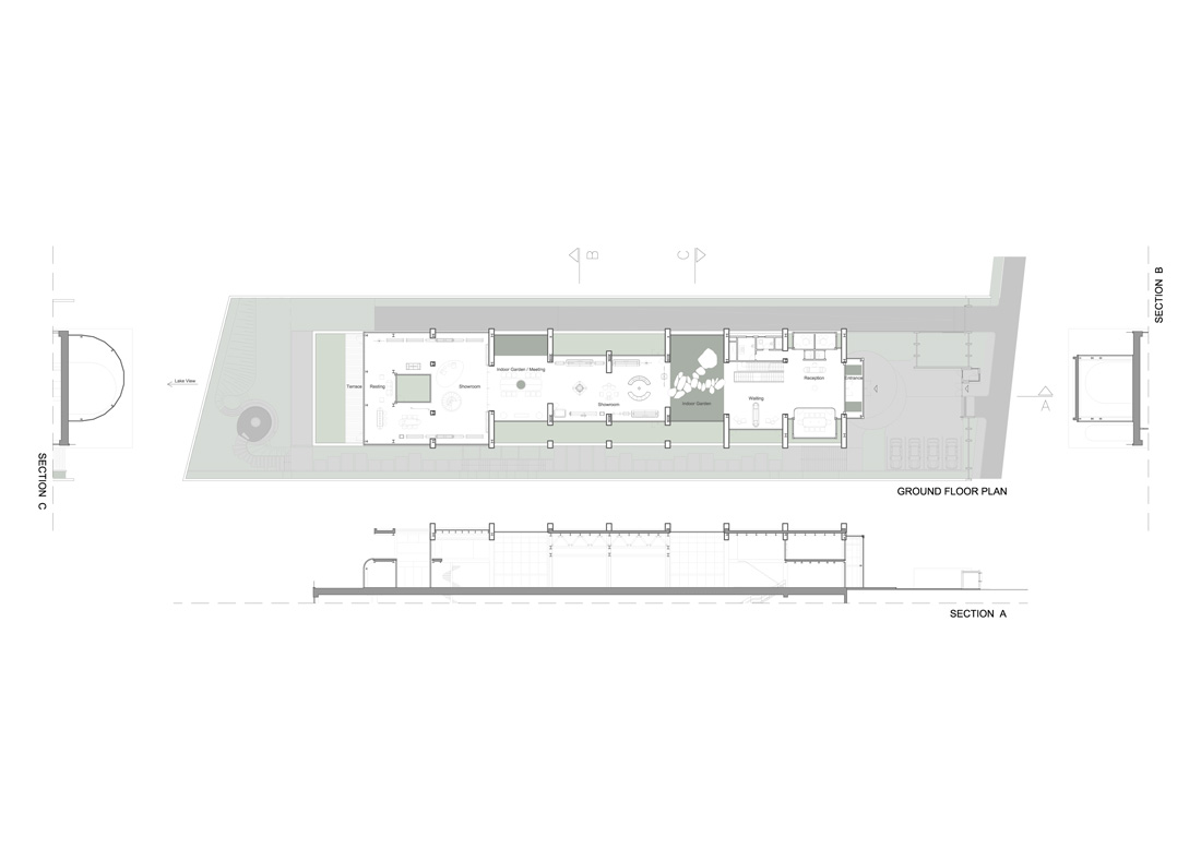
Zemberek Design team has been involved in the project in an early stage while rough construction of basement floors was in process. Therefore, facade and interior design revised and developed to hold to existing reinforced concrete structure and axis system. Due to the new design concept and visitor experience scenario especially on the ground floor, which is planned as a showroom, the previously designed reinforced concrete system was replaced with steel construction. In this manner, there has been more potential for holistic and variable space design.
The language and material choices in the interior design were made in a way to maintain the modern and modest attitude while referring to the strong and established structure of the company. On the façade, aluminum profiles of vintage tones and window glasses of different shades and textures were preferred. In the details, materials such as brass, marble, glass, wood, and velvet fabric dominate the design, forming elegant integrity. The brass and wood details produced by handwork coincide with the concepts such as care and precision as in the company’s stance. On the wide surfaces such as floors and walls, rather calm, brutalist appearances were targeted, and concrete and concrete derived materials were preferred.
What makes this project one-of-a-kind?
One of the fundamental goals of the design was welcoming the visitors to a journey that starts from the entrance of the building and extends to the lakeside with a holistic and segmented flow. While the arches, lined up one after the other like a backbone, divide the space into sections, also provides a perception of direction and different perspective possibilities that invite the visitors into the flow of the building.
The preliminary sections from the entrance of the building welcome the guests and surround them with an unexpectedly living nature atmosphere that appeals to all their senses with its dense plants, moist air, scent, and even small birds, like a jungle under the glass vault. Therefore, the guests passing by and touching the plants, reach the showroom which accommodates the working space and lounge. The second glass vaulted section divides the showroom into two and also provides large meeting space. Eventually, the journey finishes with an interior lounge and a terrace that overlooks the lakeside view.
One of the important aspects of the design was to place numerous plants effectively both inside and outside terraces, to perceive and feel them as a vivacious instrument of space more than any architectural element. In such a location away from the city center, structure, which does not have any functional relationship with its neighbourhood, identifies an inward-oriented lifestyle and empowers its relationship with natural surroundings and lake view with its plant diversity and density.








Credits
Interior
Zemberek Design; Başak Emrence, Şafak Emrence, Ece Ilgın Avcı, Murat Çakan, Fatma Altıntaş, Cihan Şahin, Çağla Abdu Dönmez, Elif Molla
Client
Private
Year of completion
2020
Location
İstanbul, Turkey
Total area
6.000 m2
Photos
İbrahim Özbunar
Project Partners
Facade: CMA Yapı, Mechanical Project: Beta Teknik, Electric Project: Tasarım Proje, Steel Construction: Mega Çelik, Metal Work: Kartek Paslanmaz, Kıraç Metal, Peronda Grupo S.A., EGEM Mozaik Dizayn, Decovita Ceramics, Bagno Station, DGM Doğal Taş, Mudo Concept, Opinion Ciatti design, Antique and Flea Market – House of Junk, Dankz Furniture, Movielamp Lighting Factory, Özcan Aydınlatma lightning, The Jotun Group, Yütaş Yapı Ürünleri Tic.A.Ş., Kohler Co., Vitra, Grohe, Öztiryakiler Endüstriyel Mutfak, Vestel heating devices, Palmiye Botanik, Akdoga Cicekcilik (Akdoğa Çiçekçilik),
HOMES by CMA Pty Ltd





