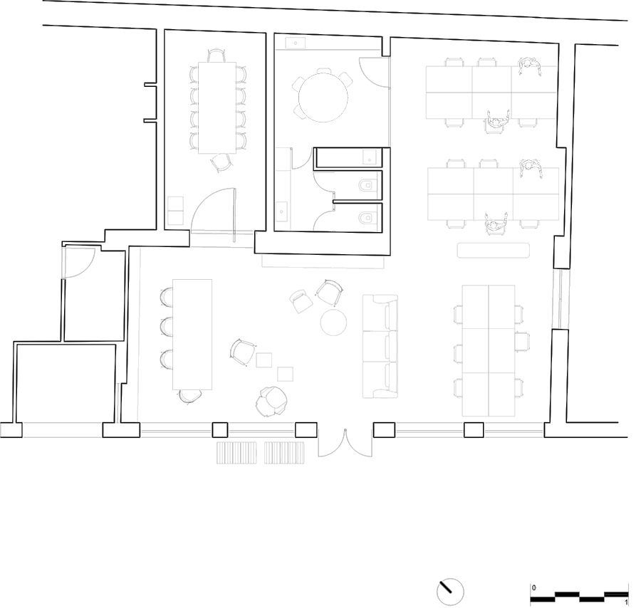
The term ‘foyer,’ originally meaning a hearth, has evolved to describe a social hall designed for relaxation during breaks. This multifunctional space embodies the Marslab store concept, serving as a showroom, coworking hub, event venue, and photography studio. With its industrial design and serene atmosphere, the space fosters both focused work and creativity.
Every corner is thoughtfully designed, supporting diverse purposes from product presentations to coworking meetings and events, seamlessly blending functionality with inspiration. Marslab’s curated designs are on display, featuring Czech and international products, including fixtures by Jiří Krejčiřík and furniture from Viccarbe and Arrmet. This harmonious integration of aesthetics and functionality creates a truly memorable experience.








Credits
Interior
mar.s architects; Martin Šenberger, Romana Šteflová
Client
Private
Year of completion
2022
Location
Prague, Czech Republic
Photos
BoysPlayNice





