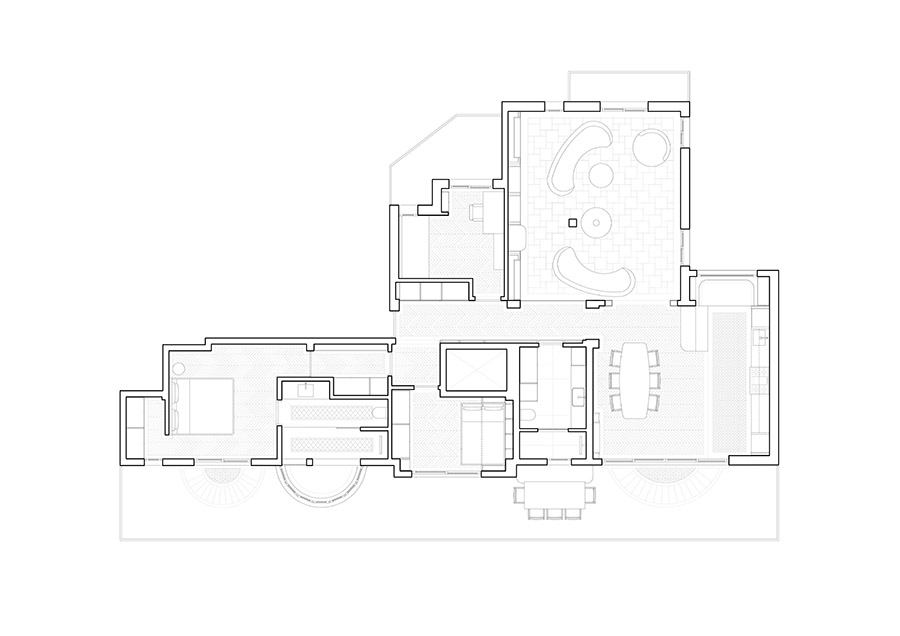
This challenging project concerns the renovation and interior design of a spacious penthouse in an apartment building of the ’60s in the Acropolis area in central Athens. The owners had a clear vision regarding the choice of aesthetic direction, and their desire to create spaces filled with various references, colors, materials and textures was evident since the beginning. The deliberate mix of elements from different cultures and periods in a unifying way, is aimed at creating an eclectic and unique space inspired by the lived experiences and memories of the owners. A special project of high standards that stands out for its strong impact.












Credits
Interior
Ghost Designers
Year of completion
2023
Location
Athens, Greece
Total area
160 m2
Photos
imoments; Nikos Papageorgiou
Project Partners
Contractor: EPIKYKLOS construction company
Architectural study: Square One Studio





