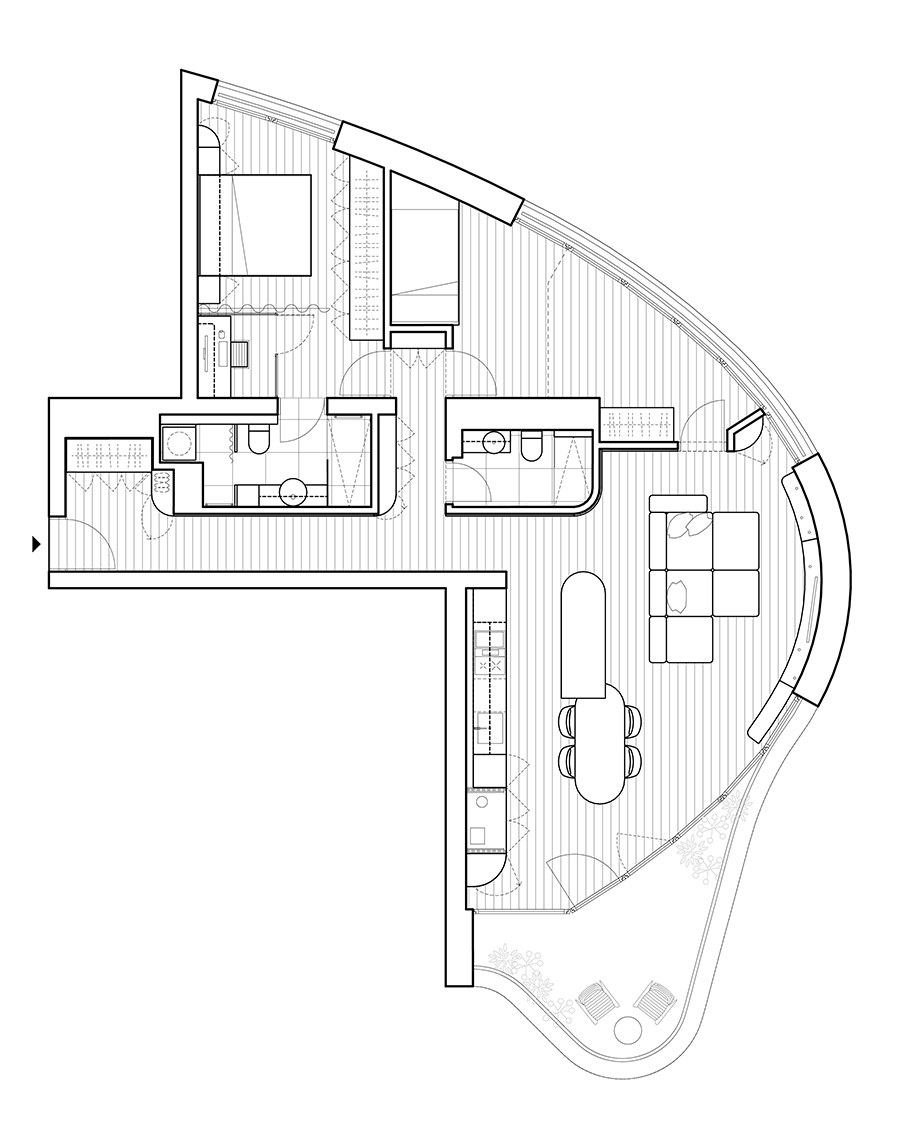
The Ellipse Apartment mirrors the building’s elliptical architecture, seamlessly incorporating curved lines into the interior. Designed by Leppa Studio for a young family, the project prioritizes functionality, fluidity, and timeless aesthetics.
The layout was optimized to enhance spatial flow, with custom-built furniture in natural tones creating a sense of continuity. A mint green kitchen island, inspired by the building’s façade, serves as a striking focal point, while a ribbed glass work nook discreetly integrates a workspace into the bedroom.
A large-scale custom artwork by Samira Kentrić, applied directly onto the furniture, introduces a unique artistic statement. The result is a harmonious and highly functional living space, where architecture and interior design work together to elevate everyday life.












Credits
Interior
LEPPA
Client
Private
Year of completion
2024
Location
Ljubljana, Slovenia
Total area
111 m2
Photos
LEPPA; Gaja Golja





