Resalta: A New Office for Growth and Collaboration
Resalta, a leading provider of decarbonization-as-a-service in Central and Eastern Europe, has moved to a new office space designed to support its expanding team and foster collaboration. The relocation unites all employees on a single floor, creating a green, innovative workplace centered on creativity, well-being, and productivity.
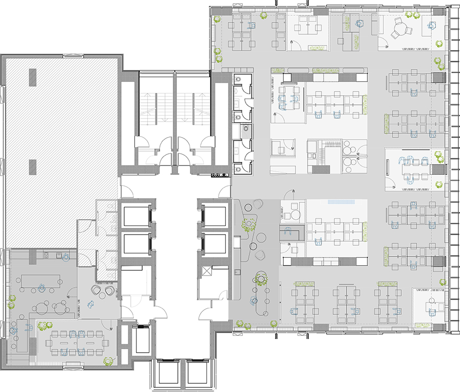
Situated in Ljubljana’s Crystal Palace, the 610 m² office features a flexible open layout, complemented by strategically placed closed support areas to improve cooperation and communication. Key spaces include a central lounge, a cafeteria, meeting rooms, quiet rooms, work booths, and an aquarium.
Permanent workstations are positioned to maximize natural light exposure, with a social area and video conferencing room located nearby. Despite the open-plan design, excellent acoustics have been achieved using acoustic flooring and ceiling elements, ensuring a comfortable work environment.
In line with cost-efficiency and sustainability goals, existing furnishings were repurposed, while biophilic design elements were incorporated to create a vibrant, inspiring atmosphere. The new space reflects Resalta’s commitment to innovation and environmental responsibility, making it a hub for collaboration and progress.













Credits
Interior
Vi-zo architecture & design, Van-ark design; Vivijana Zorman, Jure Vanič
Client
Resalta d.o.o.
Year of completion
2024
Location
Ljubljana, Slovenia
Total area
610 m2
Photos
Anja Deronja
Project Partners
KD Projekt; Damjan Kuzmic, KK mizarstvo d.o.o.; KristjanOgrin, RSN media d.o.o.; Primož Davidovič, Anvina d.o.o.; Lidija Trček, Beltram d.o.o.; Beltram Aleš





