Extension of the Kindergarten in Laakirchen
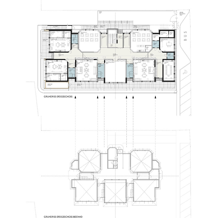
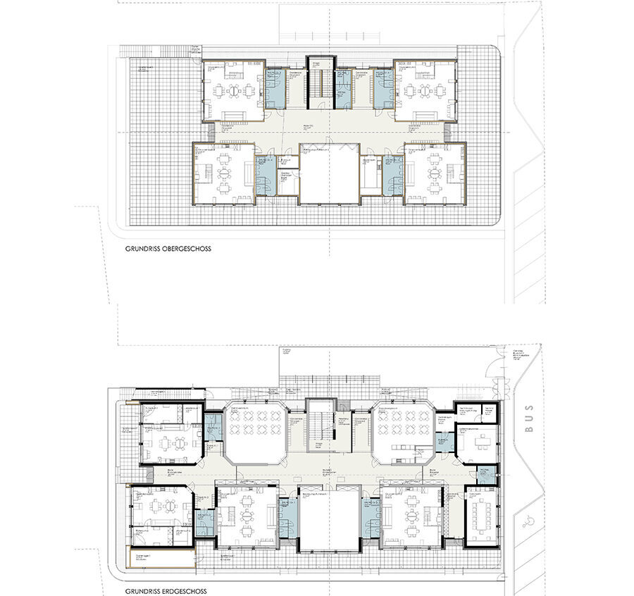
Horizontal and vertical additions transformed the former Caritas kindergarten with three groups into a contemporary elementary educational facility with six kindergarten groups and two toddler groups. The elongated building structure is segmented by projections and recesses in the outer shell, a transition from plaster to wooden cladding, and a reduced surface area. This design creates protected outdoor play areas on two levels, located in front of and around the group rooms. The extensions and superstructures were constructed using sustainable wood panel construction with high-quality hemp insulation.









Credits
Architecture
Arge Architektur Hochleitner; Georg Hochleitner
Client
Municipality of Laakirchen, Upper Austria
Year of completion
2023
Location
Laakirchen, Austria
Total area
1.187 m2
Site area
4.009 m2
Photos
Samuel Jungwirth
Winners’ Moments
Project Partners
Stern & Hafferl Baugesellschaft m.b.H.; Stefan Oberkalmsteiner





